Anbau Einfamilienhaus Landsberg

Die junge Familie hat Nachwuchs erwartet und hatten nicht genug Platz im Bestandshaus in Landsberg am Lech. Sie haben mein Architekturbüro mit der Entwurfs- und Genehmigungsplanung beauftragt, um ihr Haus umzubauen und anzubauen.

Die Herausforderung war die Genehmigung, da größere Nachverdichtungen von politischer Seite in der Schwaighofsiedlung derzeit unerwünscht sind. Deshalb mussten wir den Umweg über den Bauausschuss gehen, schafften es aber letztendlich die Genehmigung zu erhalten.

Die Umbaumaßnahmen sollten möglichst minimal gehalten werden und das Hauptaugenmerk war auf den Möglichkeiten, die der Grundriss für einen Umbau bietet. Der Anbau ist nur wenige Meter breit, was eine gestalterische Herausforderung darstellte. Auch die Kosten für den Umbau sollten möglichst gering gehalten werden.

Leeres Wohnzimmer und Küche in einem modernen Haus mit großen Fenstern, viel Tageslicht und minimalistischem Design.
Ein modern gehaltenes, weißes Einfamilienhaus mit dunklem Satteldach, umgeben von einem kleinen Garten mit Zaun, an einer ruhigen Nebenstraße im Hellen an einem sonnigen Tag.
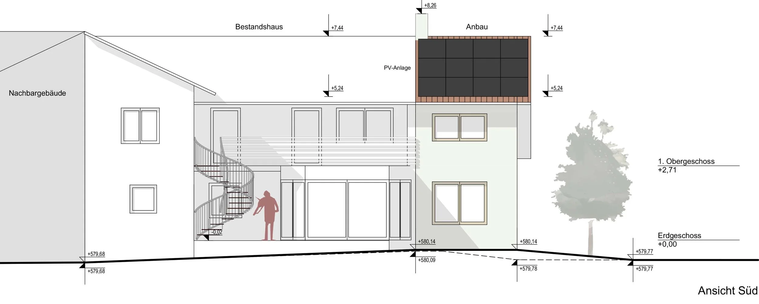
Architektonische Zeichnung eines Mehrfamilienhauses mit zwei Geschossen, zwei schematischen Bäumen, einer Frau mit Hund, und einem Gerätehäuschen, Markierungen für Höhenangaben und Grenzen.
Schnittzeichnung eines Hauses mit zwei Stockwerken, Dachneigung, Maßen und Fenstern, und einer angedeuteten Person im oberen Stockwerk.